You are here: CSP Hardware Product Descriptions > 1 Chassis > CSP 2110 Chassis - EXSCHA1201/EXSCHA1201R
CSP 2110 Chassis - EXS-CHA-1201/EXS-CHA-1201R
The CSP 2110, a mid-range chassis configuration of the Converged Services Platform (CSP), is designed to meet the demands of the telecommunication industry by delivering high performance, fault tolerant switching in a compact microprocessor-based design. It provides additional power and cooling required, for example, by the Voice Data Access Concentrator (VDAC) cards.
A typical CSP 2110 chassis can accommodate up to 2,048 ports, support matrix CPU cards, a fully configurable combination of line and services cards, and a host interface. The CSP supports redundancy and the cards are hot swappable. Blockout cards are required for proper air flow and cooling. Any unoccupied line card slot or I/O card slot should have a Blockout card installed.
The CSP 2110 supports common channel signaling packet engines for both ISDN and SS7 communications; Voice Data Access Concentrator (VDAC) cards; and line protocol cards which include E1, T1 and J1 services. Standard and custom tone generation and reception, precise call analysis, conferencing and voice recorded announcements are provided through an advanced Digital Signal Processing unit available for the CSP.
The CSP 2110 can operate as either a stand-alone unit, or as a unit in a larger system.
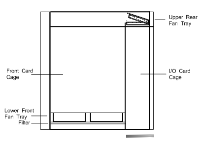
The CSP 2110 chassis consists of the following:
• Two fan trays, front and rear
• A midplane bus, which is a high-speed communication line for connecting individual line cards and I/O cards
• A 20 card slot chassis (with dedicated CPU and power card slots)
• Mounting brackets so the chassis can be mounted in a 19" or 23" rack
The part number, serial number, model number, and revision are located on the side of the chassis.
The CSP 2110 chassis is designed to the following electrical, physical and environmental specifications.
|
Electrical |
Specification |
|---|---|
|
Input Power Requirement |
-48 V DC, 25A (maximum) |
|
Input Voltage Range |
-40 V DC to -60 V DC |
|
Physical |
Specification |
|---|---|
|
Height |
48.9 cm (19.25 in.) |
|
Width |
43.8 cm (17.25 in.) |
|
Depth |
48.6 cm (19.125 in.) |
|
Weight |
34 kg (75 lb.) (empty chassis with fan trays and blockout cards installed) |
|
Environmental |
Specification |
|---|---|
|
Temperature - Storage |
-40~C to 70~C (-40~F to 158~F) |
|
Temperature - Operation |
0~C to 50~C (32~F to 122~F) |
|
Temperature Shock - Storage |
-40~C to 70~C to -40~C (-40~F to 158~F to -40~F) @ 5~C/min. |
|
Temperature Shock - Operation |
0~C to 50~C (32~F to 122~F) @ 10~C/min. |
|
Humidity - Operating |
5% to 85% |
|
Altitude |
Up to 4000 m (13,123 ft.) |
The front of the chassis has dedicated slots for the Matrix Controller and Power cards. Slots 0-15 are for the other line cards.
The rear of the chassis has dedicated slots for the Matrix Controller I/O cards. Slots 0-15 are for the other I/O cards. The power input panel is also located at the rear of the chassis
This shows the approximate location of the fan trays and the front and rear card cages.